
도쿄 북서쪽에 위치한 네리마구 헤이와다이(平和台)라는 지역에 있는 저층 맨션입니다.
이 지역은 건물 높이 제한이 있는 지역으로 고층건물을 짓지 못하기 때문에 이번에 소개드릴 도쿄 맨션(아파트)는 4층으로 된 저층 맨션입니다.
노무라 부동산이라는 대기업의 브랜드로 건설되고 있는 맨션입니다.
맨션명은 "프라우드 헤이와다이 가든(プラウド平和台ガーデン)".
맨션에 대해 그리고 판매가격에 대해서 알아보도록 하겠습니다.
프라우드 헤이와다이 가든(プラウド平和台ガーデン)의 위치

헤이와다이(平和台)역에서 도보 5분거리에 있는 저층맨션입니다.
역에서 아주 가깝다는게 가장 이점입니다.

역에서 가까운점뿐만아니라 맨션에서 걸어서 4분거리에 큰 마트.
걸어서 3분거리에 생필품을 구입할 수 있는 드럭스토어(약국).
가전제품을 파는 야마다뎅끼는 걸어서 2분으로 약 5분거리내에 생활에 필요한 모든것들이 갖추어져 있는 맨션입니다.

헤이와다이(平和台)는 주택가 지역으로 주변 개발이 한창입니다.
지하로를 만드는가하면, 지상에 있던 자전거 주륜장을 지하로 이동시킴으로써 지상은 깔끔하게 정리하고 있습니다.

그리고 유락초선, 후쿠도심선이라는 지하철 2개의 노선을 이용할 수 있는 곳으로 이케부쿠로, 신주쿠, 시부야, 긴자, 요코하마도 갈아타지 않고 한번에 갈 수 있습니다.
도쿄의 서쪽도, 동쪽도 갈아타지 않고 갈수 있는 도심을 이동하기에도 정말 좋은 곳에 위치한 맨션입니다.
프라우드 헤이와다이 가든(プラウド平和台ガーデン)의 주의할점

맨션은 모델룸에서만 이야기를 듣지 말고 직접 맨션 공사현장이나 주변환경을 확인하는게 좋습니다.
위의 사진에서 왼쪽이 맨션 공사현장이고요.
바로 옆에 도로가 하나 있는데, 도로가 이렇게 좁은데 일방통행이 아닙니다.
게다가 차량통행량이 꽤 많습니다.
한대가 멈춰서 반대편에서 오는 차량을 먼저 보내줘야 이동할 수 있는 좁은 도로입니다.
맨션 영업사원은 이런건 이야기 안해줍니다.
게다가 이 도로쪽으로 발코니가 있습니다.
창문을 열어놓으면 배기가스, 차가 지나가는 소리등 소음이 조금 걱정되는 맨션입니다.
그리고 자세히 보면 도로를 바라보는 베란다쪽 바로 앞이 수많은 전선들이 있습니다.
눈에 안거슬린다면 상관이 없을텐데, 2층, 3층의 경우 발코니에서 보이는 풍경은 전선들일거 같네요.

맨션 바로 옆에는 이런 폐허가 있습니다.
이 맨션을 구매한 사람들의 인터넷 게시판이 있는데, 이 건물의 존재를 다들 몰랐더군요.
어떻게 좀 해줬으면 좋겠다고는 하는데, 맨션과는 상관없는 건물이고, 주변에 폐를 끼치는 건물은 아니기 때문에 소유자가 어떻게 하지 않는 이상 법적으로도 아무 문제가 없는 건물입니다.
이 건물은 오래전에 동전빨래방이었던거 같습니다.
프라우드 헤이와다이 가든(プラウド平和台ガーデン)의 내외관

"프라우드 헤이와다이 가든(プラウド平和台ガーデン)"의 외관 완성도입니다.
총 46세대로 4층으로된 저층 맨션!

위에서 땅쪽을 바라본 맨션 구조도입니다.

맨션 입구사진입니다.
일본 맨션은 입구&로비가 조금 넓고 아늑하게 꾸며지는 곳이 많습니다.

그리고 이 맨션은 일반 저층 맨션과는 달리 복도가 실내로 되어 있습니다.
카펫트가 깔려있고 고급스러운 이미지 입니다.
이게 좋은 점도 있고 나쁜점도 있지요.

코로나의 영향인지는 모르겠으나, 엘리베이터의 버튼은 무터치 버튼으로 버튼에 손을 가까이 가져대면 동작하는 버튼입니다.
그리고 방안에는 천장에 이온 발생기가 설치되어 있습니다.
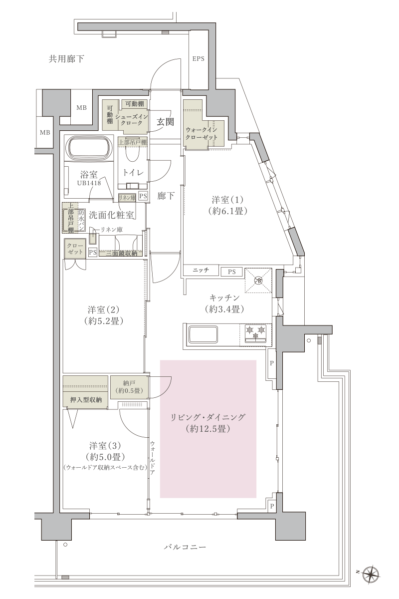
프라우드 헤이와다이 가든(プラウド平和台ガーデン)의 평면도

맨션 구조가 일반 맨션과 조금 다른구조로 되어 있는 부분도 있는데요.
오른쪽 밑에 평면도가 있는데 자세히 보시면 방 1, 2,3이 방문을 열면 전부 통하게 되어 있습니다.
코로나로 인해 재택근무가 늘어나면서 재택근무를 위한 환경구성에 중점을 맞춰서 판매를 하고 있습니다.
침실에서 방문을 통해 옆에 재택근무 공간으로 이동!
거실로 나오지 않고도 최소한의 이동으로 대응이 가능하다는건데, 그냥 간단히 생각하면 좋은 아이디어인데? 라고 생각하기 쉬운데, 실제로 이 맨션을 구입해서 생활을 한다고 했을때 구지 저렇게 집구조를 해야할 필요가 있을까 라는 생각이 듭니다.
화장실, 밥 먹을려면 어차피 거실로 나와야하고, 오히려 방문이 많은만큼 각방의 방음성은 떨어지니 구지 좋다고는 못할거 같아요.

거실옆에 있는 침실1의 벽을 걷어서 거실을 넓게 사용할수도 있습니다.
이 벽을 걷는건 월도어가 설치가 되어 있어서 인데요.
월도어에 대해 아랫부분에 설명하겠습니다.

이건 월도어를 쳐서 거실과 침실1을 분리시켜놓은 이미지입니다.
거실에 아주 좁아지니 55인치이상의 티비를 놓으면 너무 가까워서 보기 안좋을겁니다.

이렇게 일본의 맨션은 월도어를 이용해서 거실을 넓게도, 거실을 좁게해서 침실을 하나 더 늘릴 수 있는 구조로 되어 있는 맨션이 많습니다.

생활패턴에 맞게 사용할 수 있게 되어 있는데, 월도어의 경우 방음이 거의 안되니 그부분은 주의가 필요합니다.

저렇게 문이 많으면 좋은 점도 있는데, 개인적으로는 별로 좋아하지 않는 구조에요.

이렇게 전부 문을 개방해놓으면 조금 넓어보이긴 할거 같아요.
하지만, 이렇게 사용하시는 분들은 없을꺼에요.
자세히 들여다보면 창고가 없습니다.
안쓰는 물건들 넣어둘 공간이 있어야 좋을거 같은데, 저 방 중에 하나는 창고처럼 써야 할겁니다.

맨션 모퉁이에 있는 집입니다.
거실의 오른쪽 벽면도 아랫쪽도 창문으로 되어 있어서 좋아 보입니다.
다만!!
실제로 맨션 현장에 가보면 이 집의 오른쪽편에는 헬스장을 건설 하고 있습니다.
이 맨션의 창문과 헬스장의 창문이 서로 마주보는 구조라면 썩 좋은 구조는 아닌거 같아요.

약 20평의 맨션 제일 왼쪽 모퉁이에 있는 집입니다.
일반적인 일본의 맨션구조이긴 하나 창고가 없네요.
커다란 수납장을 사서 거기에 넣어야 할거 같네요.
실제로 이곳에서 생활을 한다고 과정하에 현재 가지고 있는 물건들은 어떻게 배치를 할까 조금 고민을 해보는게 좋습니다.

약 20평의 모퉁이 집이 아닌 집과 집 사이에 있는 집입니다.
일본의 맨션은 방에 창문이 있도록 설계를 하는 곳이 많습니다.
하지만 이 집은 방 3개중에 2개가 창문이 없네요.
이 구조는 모퉁이 집일 경우 이 구조가 맞을거 같은데 집과 집사이에 이 구조는 조금 아닌거 같네요.

약 18평의 평면도입니다.
방과 방사이에 커다란 워크인크로젯이 있군요.
일본 맨션 구조에 대해

알기 쉽게 한글로 표기를 했습니다.
약 20평의 침실 3개가 있는 맨션(아파트)입니다.
주방의 싱크대로 거실쪽을 바라보는 오픈형 키친입니다.
일본은 대부분의 맨션이 이 구조로 되어 있습니다.
그리고 주방에 점선으로 사각형안에 X자로 점선 처리되어 있는 부분이 냉장고를 넣는 장소입니다.
보통 폭이 75cm 정도로 우리나라의 일반적인 양문형 냉장고는 못 넣습니다.
일본도 양문형 냉장고가 있는데 큰 사이즈가 600리터 정도로 작답니다.

그리고 우리나라는 욕실, 화장실, 세면실이 하나로 되어 있는데, 일본은 전부 분리되어 있습니다.
화장실 따로, 세면실 따로, 욕실 따로 입니다.
여기에서 바닥이 물바닥이 되어도 괜찮은 곳은 욕실뿐입니다.
화장실, 세면실은 일반 장판이 깔려 있고 물청소가 불가능한 곳으로 걸레로 닦아서 청소해야합니다.
개인적으로는 이 구조가 지금은 좋더라고요.
아!
일본은 맨션이 30평짜리가 되어도 화장실은 보통 1개입니다.
화장실이 2개 있는 맨션은 보기 드물어요.
월도어(Wall Door)에 대해

여기에서 월도어(Wall Door)에 대해 알아보겠습니다.
거실과 침실3 사이에 벽이 있는데요.
이부분은 걷어서 거실을 넓게 사용할 수도 있고, 월도어(Wall Door)를 쳐서 거실과 침실3으로 분리해서 사용할 수 있습니다.
알기 쉽게 움직이는 이미지로 준비해봤습니다.

이게 월도어(Wall Door)입니다.
일본의 대부분의 맨션에 거실쪽에 설치되고 있습니다.
설치도 아주 간단하답니다.
프라우드 헤이와다이 가든(プラウド平和台ガーデン)의 개요

2022년 4월 공사가 끝나고 2022년 6월 중순부터 입주가 가능한 맨션으로 2021년 6월부터 판매를 시작하고 있습니다.
역에서 가깝다는 입지조건이 있기 때문에 46세대 중 약 33세대가 판매시작과 동시에 계약 완료 되었습니다.
판매가격은 아랫부분에 소개를 할 예정이지만, 가격이 시세에 비해 약 5000만원(500만엔)정도 올린 상태에서 판매를 했는데도 금방 팔렸네요.
프라우드 헤이와다이 가든(プラウド平和台ガーデン)의 선착순 판매

선착순으로 판매하고 있는게 총 4세대가 있습니다.
처음에 판매하는 세대가 있고, 그때 안팔린 세대를 이렇게 선착순으로 판매하고 있다고 들었습니다.
■58.76㎡ (약 17평)
・판매가격 : 5억 8480만원
・관리비(매월) : 18.7만원
・수선유지비(매월) : 9만원 (5년마다 인상)
■70.44㎡ (약 20평)
・판매가격 : 7억 4480만원
・관리비(매월) : 22.4만원
・수선유지비(매월) : 10만원 (5년마다 인상)
맨션(아파트)를 구입하더라도 관리비와 수선유지비는 매달 내야합니다.
수선유지비는 5년마다 인상되며, 약 30년간 인상 됩니다.
이 맨션의 경우 최대 45만원선까지 오를것으로 예상됩니다.
프라우드 헤이와다이 가든(プラウド平和台ガーデン)의 판매금액

약 20평 기준으로
4층 : 7억 5000만원.
3층 : 7억 4000만원.
2층 : 7억 3000만원.
1층 : 6억 1000만원.
1층당 내려갈수록 약 1000~2000만원 차이가 납니다.
모퉁이에 있는 집은 가격이 많이 올라갑니다. 8억대네요.
주차장 이용료

이 맨션에는 총 40세대가 있으나, 주차장 공간은 총 5대뿐입니다.
맨션을 구입하더라도 주차장을 이용시 매달 이용료를 내야만 합니다.
・이용요금(매월) : 20만원
주륜장 이용료

자전거를 세워두는 주륜장도 이용시에 계약을 하고 이용요금을 내야합니다.
・이용요금(매월) : 4000~7000원
정원 이용료

1층 맨션을 구입한 분들은 베란다앞이 정원으로 되어 있고, 다른 층에 비해 넓습니다.
그 정원에 대해 이용요금을 매달 내야합니다.
1층 맨션을 구입하면 그 정원을 이용하든 안하든 매달 이용요금이 발생합니다.
・이용요금(매월) : 6100~14300원
마무리
맨션의 입지조건은 아주 좋으나 주변 환경의 도로가 좁다던지, 잘 관리가 되지 않는 건물이 있다던지, 숲같은 집이 있어서 벌레들이 많이 발생한다던지, 바로 옆이 헬스장으로 스포츠 시설에 따라 시끄러울 수 있다는 점 등등.
구입전에 이것저것 따져보고 구입해야하는 맨션입니다.
하지만, 역에서 가깝고, 맨션 주변에 큰 마트등 생활에 불편이 없다는 점에서는 추후 맨션을 중고로 팔아도 가격이 많이 떨어지지는 않을 맨션입니다.
투자 목적으로도 괜찮겠지만, 매달 내야하는 관리비, 수선유지비와 매년 내야하는 고정재산세를 고려하면 개인적으로는 미묘한거 같습니다.
주변이 좀 더 개발되면 괜찮을거 같은데 이쪽은 더 개발여지가 전혀 보이지 않는 곳이어서 말이죠.

댓글