
일본의 맨션(아파트) 평면도는 대부분의 맨션(아파트)들이 동일합니다.
맨션 구조가 거의 동일하고 그냥 어떤 제품들이 들어갔나?
수납은 많나? 그정도인데, 타워맨션은 타워맨셔도 얼추 구조는 비슷하지만 여러가지에요.
선택의 자유는 타워맨션이 더 자유도가 높은거 같아요.
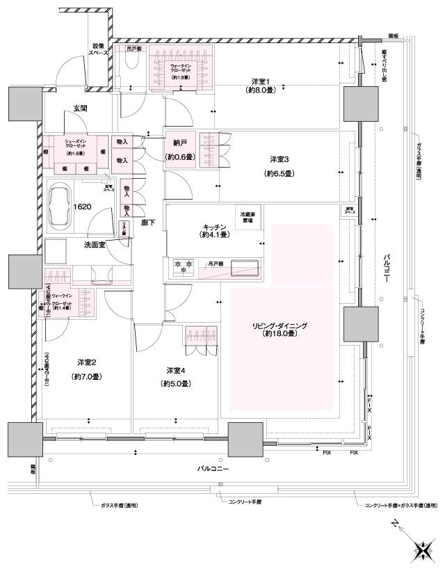
일반 맨션 평면도

일본의 일반 맨션 평면도 입니다.
대부분의 맨션이 이런 구조로 되어있습니다.
정말 이렇게 밖에 못만드나 할정도로 건설회사, 설계회사가 제각각이더라도 결과물은 거의 동일합니다.
그리고 이렇게 직사각형의 구조가 대부분이랍니다.
타워 맨션 구조

일본의 타워맨션은 바깥쪽으로 집들이 있고,
가운데에는 복도와 엘리베이터, 비상계단 등이 있습니다.
그래서 타워맨션은 복도가 실내형태로 되어 있는곳이 많습니다.
약 34평의 타워맨션 평면도

도쿄 도심에서 30평(100㎡)이상 맨션을 찾기에는 정말 어렵습니다.
있다고 하더라도 부유층을 위한 맨션으로 구입가격이 어마어마하게 비싸답니다.
위의 타워맨션 평면도를 보시면 아시겠지만, 일반맨션 평면도와는 구조가 많이 다르죠?
일본의 맨션은 30평이상의 맨션이라고 하더라도 화장실은 1개밖에 없습니다.
그리고 화장실과 욕실은 분리 되어있습니다.
온돌!
온돌은 거실(Living Dining)에 밝은 파란색으로 표시된 부분입니다.
침실에는 온돌이 들어가 있지 않습니다.
약 25평의 타워맨션 평면도

구조가 많이 다르죠?
주방은 대부분 거실 바로앞에 붙은 오픈형이 많습니다.
괜찮아 보이긴한데 실제로 가보면 위의 맨션은 수납공간이 아주 많이 부족할거 같습니다.
약 40평정도의 타워맨션 평면도

역시 평수가 넓어지면 수납공간도 많이 넓어지네요.
위의 맨션은 키친이 보이는 타입이 아니네요.
개인적으로는 이런 타입을 좋아합니다.
일반 맨션보다 타워맨션이 좋나?
일본은 지진이 많은 나라입니다.
심한 지진일경우 정전도 일어나기때문에 계단으로 오르락내리락 하기가 힘들지요.
지진이 발생하면 높은 층일수록 많이 흔들립니다.
그래서 타워맨션에는 면진설계로 건설되고 있습니다.
건물 밑에 고무판을 깔고 그 위에 건물을 올린답니다.
지진이 발생하면 지면과 건물 사이에 고무판이 있어서 흔들림을 흡수해줘서 많이 안흔들리게 되는거지요.
타워맨션!
타워맨션이라고 하면 가장 좋은 점은 전망입니다.
이렇게 지진이 많은 나라이긴 하나 지상 50층짜리 타워맨션도 짓고 하니까요.
타워맨션 선택의 주의점
저도 타워맨션을 구입하기 위해 오다이바나 시나가와등 몇군데 보러 다녀왔는데요.
확실히 바다도 보이고, 도쿄타워도 보이고 정말 전망은 좋더군요.
시설도 너무 좋더라고요.
다만, 이런점이 안좋다네요.
■출퇴근시간에 엘리베이터가 매번 만원상태로 탈수가 없음.
엘리베이터는 여러대가 있는데, 출퇴근시간대에는 만원상태가 된다고 하네요.
■층간소음 문제가 발생하기 쉬움.
타워맨션은 아주 무거운 건물입니다.
최대한 가볍게 만들기 위해 얇고 가벼운 소재들을 사용하다보니,
옆집과의 소음, 층간소음등의 문제가 발생하기 쉽습니다.
■관리비, 수선유지비 문제
관리비는 고정인데, 수선유지비는 5년마다 오릅니다.
신축으로 판매당시에는 수선유지비가 1만엔(약 10만원)이라고 하더라도 5년이 지나면 약 2만엔(20만원)~3만엔(30만원)정도로 오릅니다.
또 5년이 지나면 또 오르고요.
■중국인 주의
타워맨션은 유독 중국인들이 많습니다.
타워맨션 사는 사람들보면 매너가 나쁜 중국인들이 많아서 골치가 아픈거 같더라고요.
타워맨션이든 일반맨션이든 개인적인 성향에 따라 고르면 되겠지만,
개인적으로는 지진때문에 저층맨션을 선호하는편이랍니다.
참고로 이번 포스팅에서는 약 30평짜리 타워맨션의 평면도를 소개해드렸습니다만, 실제로는 20평정도가 주류입니다.
도쿄 오다이바 타워맨션의 가격정보!
맨션에 따라 가격은 다르지만 참고정도로만 이용하세요.
역에서 도보 4분에 35층에 있는 20평짜리 집의 가격은 8800만엔(약 9억원)입니다.(2021년 1월기준)

댓글