
도쿄 도요스(토요스)에 있는 타워맨션 "브란즈타워 토요스"의 중고 매물이 엄청 쏟아져 나오고 있습니다.
2021년 10월에 준공완료 되었고, 2022년 4월에 입주를 시작한 맨션이나 불과 5개월밖에 지나지 않은 2022년 9월 현재!
브란즈타워 토요스의 중고매물이 엄청나게 쏟아져나오고 있습니다.
지상 46층의 타워맨션인데다가 인기지역의 타워맨션인데 엄청나게 중고매물이 쏟아지는게 참 아이너리 합니다.
되팔려고 산건지 의문이지만 입주시작한지 5개월만에 엄청나게 중고매물이 나오니 이상하긴 합니다.
35층에 있는 30평짜리 중고가격은 20억원

35층에 있는 30평짜리 중고 매물입니다.
중고가격은 20억원!
구입당시에는 16억원정도로 알고 있는데, 지금 나온 중고매물이 대부분 3~5억원 올려서 팔고 있네요.

2022년 9월에 팔고 있는 가격정보입니다.
101.92㎡로 약 30평으로 가격이 20억원.
이 맨션을 구입하더라도 매달 내야하는 관리비, 수선유지비 정보!
관리비 : 47만원
수선유지비 : 10만원.
즉, 맨션을 구입하더라도 매월 57만원씩 매달 내야합니다.
게다가 5년마다 수선유지비가 오릅니다.
10만원이었던 수선유지비가 5년후에는 17만원.
또 5년후에는 25만원.
이런식으로 오른답니다.
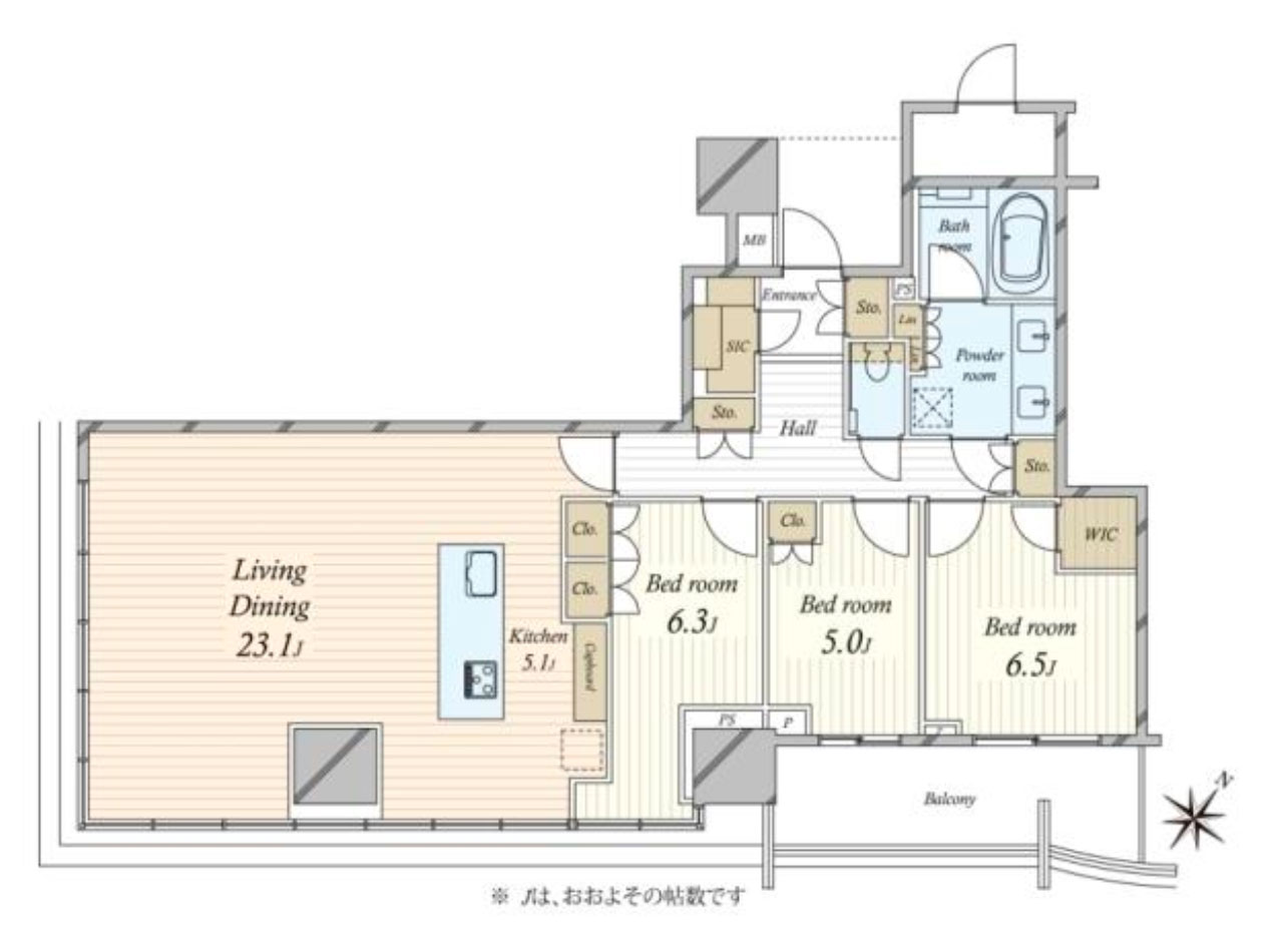
35층에 있는 30평짜리 매물 사진






상부층 판매당시의 금액정보

가격정보가 많이 공개되어 있지 않을때의 정보입니다만, 어느정도 참고는 될겁니다.
2022년 9월에 나온 "브란즈타워 토요스"의 중고매물 가격

・층수 : 7층
・면적 : 60㎡ (18평)
・가격 : 9억원 (판매당시 6억원)
・관리비 / 월 : 24만원
・수선유지비 / 월 : 6.2만원

・층수 : 14층
・면적 : 61㎡ (18평)
・가격 : 10억원 (판매당시 7억원)
・관리비 / 월 : 25만원
・수선유지비 / 월 : 6.3만원

・층수 : 19층
・면적 : 83㎡ (25평)
・가격 : 16.3억원 (판매당시 9억원)
・관리비 / 월 : 33만원
・수선유지비 / 월 : 8.6만원

・층수 : 21층
・면적 : 83㎡ (25평)
・가격 : 16.8억원 (판매당시 10억원)
・관리비 / 월 : 33만원
・수선유지비 / 월 : 8.6만원

・층수 : 35층
・면적 : 101.92㎡ (30평)
・가격 : 20억원 (판매당시 16억원)
・관리비 / 월 : 47만원
・수선유지비 / 월 : 10만원

・층수 : 39층
・면적 : 81㎡ (24평)
・가격 : 14억원 (판매당시 9.5억원)
・관리비 / 월 : 32만원
・수선유지비 / 월 : 8.3만원

・층수 : 40층
・면적 : 43㎡ (13평)
・가격 : 7억원 (판매당시 5억원)
・관리비 / 월 : 17만원
・수선유지비 / 월 : 4.5만원

・층수 : 46층
・면적 : 111㎡ (33평)
・가격 : 25억원 (판매당시 20억원)
・관리비 / 월 : 44만원
・수선유지비 / 월 : 11만원
마무리
브란즈타워 토요스의 중고매물이 이게 전부가 아닙니다.
넓은 집에 살겠다고 넓은 집을 사게 되면 그만큼 매달 내야하는 관리비와 수선유지비가 비싸지니 유지할 수 있는 맨션(아파트)를 구입해야합니다.
즉, 위의 33평짜리 집을 구입했을경우, 관리비와 수선유지비만 매달 55만원씩 내야하고,
5년후에는 65만원!
또 5년 후에는 75만원.
이게 맨션 구입하고도 이만큼 매달 돈을 내면서 지내질 수 있으시겠어요?

댓글